Dự án nhà ở xã hội phường Phố Hiến Hưng Yên
Dự án nhà ở xã hội phường Phố Hiến tọa lạc tại phường Phố Hiến, tỉnh Hưng Yên. Nhờ nằm trên trục kết nối giữa cao tốc Hưng Yên – Thái Bình và Quốc lộ 38B, liền kề khu đô thị Đại học Phố Hiến, dự án sở hữu vị trí thuận lợi cho an cư lâu dài, đáp ứng nhu cầu đi lại và tiếp cận các tiện ích đô thị hiện hữu.
Click vào để biết vị trí, tiện ích, quy hoạch… của dự án
Chọn loại tiện ích
Bạn muốn đặt Hotline ở đây
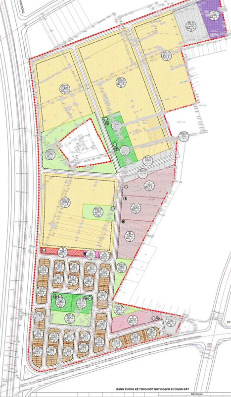
Quy mô dự án nhà ở xã hội phường Phố Hiến Hưng Yên

Phối cảnh dự án nhà ở xã hội phường Phố Hiến
|
Tổng diện tích |
31,1ha |
|
Quy mô xây dựng |
25 tòa cao 9 tầng 1 tầng hầm |
|
Số lượng sản phẩm |
4.400 căn hộ |
|
Quy mô dân số |
Hơn 9.740 người |
Quy mô dự án nhà ở xã hội phường Phố Hiến

Sản phẩm dự án nhà ở xã hội phường Phố Hiến Hưng Yên
Dự án cung cấp khoảng 4.400 căn hộ nhà ở xã hội.
Ngoài ra dự án còn dành 3,1ha đất xây dựng nhà ở thương mại thấp tầng cao 4 tầng.
Tiện ích dự án nhà ở xã hội phường Phố Hiến Hưng Yên
– Công viên
– Công trình văn hóa, y tế
– Trường học liên cấp
– Khu thể dục thể thao
– Bãi đỗ xe…
Pháp lý dự án nhà ở xã hội phường Phố Hiến Hưng Yên
Dự án nằm trong phạm vi ranh giới đồ án Quy hoạch tỷ lệ 1/2.000 phân khu đô thị Đông sông Điện Biên (Phân khu D) đã được UBND tỉnh phê duyệt tại Quyết định số 789/QĐ-UBND ngày 29/8/2025.
Tiến độ dự án nhà ở xã hội phường Phố Hiến Hưng Yên
Dự án chính thức khởi công ngày 19/12/2025.
Thông tin chủ đầu tư dự án nhà ở xã hội phường Phố Hiến Hưng Yên
Chủ đầu tư dự án nhà ở xã hội phường Phố Hiến là Công ty cổ phần Vinhomes hoạt động từ năm 2008, địa chỉ trụ sở là Tòa nhà Văn phòng Symphony, đường Chu Huy Mân, Khu đô thị Vinhomes Riverside, phường Phúc Lợi, TP.Hà Nội. Người đại diện pháp luật là ông Đặng Minh Hải. Doanh nghiệp hoạt động chính trong lĩnh vực kinh doanh bất động sản, quyền sử dụng đất thuộc chủ sở hữu, chủ sử dụng hoặc đi thuê.
Thông tin nhanh dự án nhà ở xã hội phường Phố Hiến Hưng Yên
|
Dự án: Nhà ở xã hội phường Phố Hiến |
Tổng diện tích: 31,1ha |
|
Vị trí: Phường Phố Hiến, tỉnh Hưng Yên |
Tổng vốn đầu tư: Khoảng 6.000 tỷ đồng |
|
Loại hình: Căn hộ, nhà liền kề |
Năm khởi công: 19/12/2025 |
|
Chủ đầu tư: Công ty cổ phần Vinhomes |
Năm hoàn thành: |
Cẩm Tú
Sản phẩm/ Dịch vụ
Bạn muốn đặt Hotline ở đây
Cảnh báo: Thông tin dự án này được CafeLand tổng hợp từ nhiều nguồn khác nhau và chúng tôi cho là tin cậy. Tuy nhiên, dự án có thể thay đổi nhiều thông tin qua thời gian do chủ đầu tư hoặc cơ quan chức năng nên sẽ có những thông tin chưa được thống nhất và cập nhật kịp thời. Vì vậy, bạn đọc và khách hàng dự án chỉ xem đây là nguồn tham khảo.
